Oval house
Oval House
Oval House
Oval House
Oval House
Oval House
Oval House
Oval House
Oval House
Oval House interior
Oval House interior
Oval House interior
Oval House interior
Oval House interior
Oval House interior
Oval House interior
Oval House interior
Oval House interior
Oval house
Oval House interior
Oval house
Oval House interior
Oval House interior
Oval House interior
Oval House interior
Oval House
Oval house
Oval house
Oval house
Oval house

Oval house

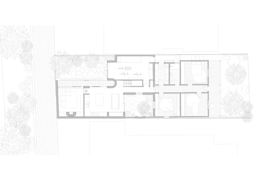
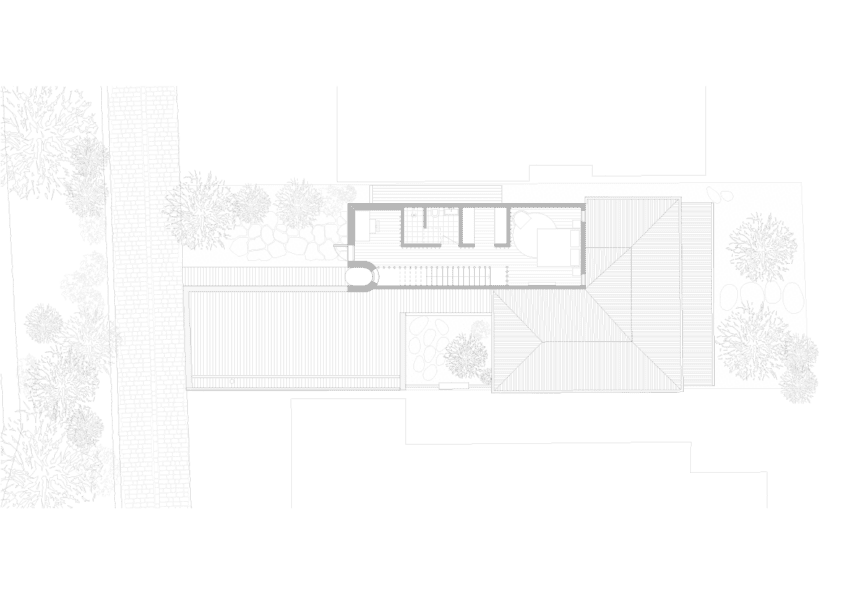
On the lands of the Wurundjeri, Oval HouseĀ is a study of place taken across multiple channels of the natural and built landscape, history and society.

The study of its place in the built landscape; a humble Victorian on a suburban Coburg street just down the road from the imposing and notorious former Pentridge Prison. From which robust details and geometries have been drawn.

Its place at a moment in history; where homes are modified to meet raised environmental standards.

Its place in society; for an engaged family who are connected to their local community and culture in a home right next door to the footy oval. These connections are evident through memory and deliberate elements of playful nostalgia.

Its place in the natural landscape; with materials reflecting tones and texture of native flora, particularly the shimmering silvers and rich blossoms of the flowering gum that drapes across the entrance.

Please rotate your screen

phone-orientation