Borrowed Garden House

Albert Park

On the lands of the Bunurong people

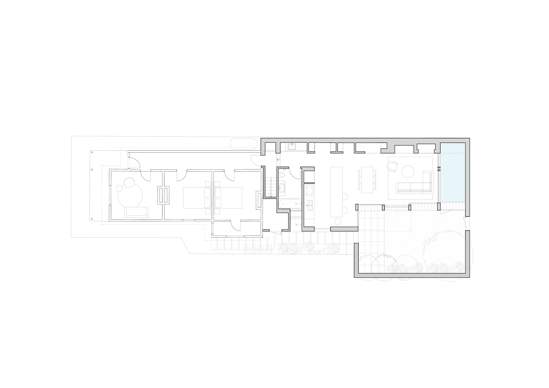
This alteration and addition to a single-fronted Victorian house seeks to counter the experience of living on a narrow, inner-city site by designing an open and generous home that seems to extend into the treetops of the neighbours’ gardens. The addition captures deliberate and carefully composed views of landscape and is inspired by concepts of the walled garden and the borrowed garden.

A masonry wall traces around the edges of the site to the rear and defines the interior and exterior spaces of the new, north-facing addition. This continuous built edge undulates a bit like a landscape element, expanding and contracting along the northern boundary to frame a fireplace, storage and nooks for seating, before changing course and folding into the interior to define the kitchen.

The walled garden is compact but cleverly integrated into the floor plan. A glass wall with sliding doors is a protective layer through the middle of the ground floor, enclosing living spaces without visually separating them from the adjacent garden. A long kitchen organises activity within the open-plan living area. Beyond the garden walls, views of the surrounding treetops allow the owners to delight in the experience of a borrowed garden.

Externally, profiled hardwood cladding in a charcoal finish appears delicate. Openings are articulated with a geometry drawn from the shape of the Victorian awnings found on neighbouring houses. Upstairs, a small north-facing balcony projects out from the main bedroom and is reminiscent of a ship’s bridge. Framing selected views of the surrounding trees and rooflines, it playfully suggests the moment when an enormous shipping container is glimpsed through the narrow gaps between small bayside cottages.

Borrowed Garden House

Albert Park

On the lands of the Wurundjeri

This alteration and addition to a single-fronted Victorian house seeks to counter the experience of living on a narrow, inner-city site by designing an open and generous home that seems to extend into the treetops of the neighbours’ gardens. The addition captures deliberate and carefully composed views of landscape and is inspired by concepts of the walled garden and the borrowed garden.

A masonry wall traces around the edges of the site to the rear and defines the interior and exterior spaces of the new, north-facing addition. This continuous built edge undulates a bit like a landscape element, expanding and contracting along the northern boundary to frame a fireplace, storage and nooks for seating, before changing course and folding into the interior to define the kitchen.

The walled garden is compact but cleverly integrated into the floor plan. A glass wall with sliding doors is a protective layer through the middle of the ground floor, enclosing living spaces without visually separating them from the adjacent garden. A long kitchen organises activity within the open-plan living area. Beyond the garden walls, views of the surrounding treetops allow the owners to delight in the experience of a borrowed garden.

Externally, profiled hardwood cladding in a charcoal finish appears delicate. Openings are articulated with a geometry drawn from the shape of the Victorian awnings found on neighbouring houses. Upstairs, a small north-facing balcony projects out from the main bedroom and is reminiscent of a ship’s bridge. Framing selected views of the surrounding trees and rooflines, it playfully suggests the moment when an enormous shipping container is glimpsed through the narrow gaps between small bayside cottages.