Lisieux

Middle Park

On the lands of the Boon Wurrung

Lisieux is a beachfront property, located in Middle Park on the low lying strip of land between Albert Park Lake and Port Phillip Bay, once called Hobson Bay, and before that for a long time, Nairm. We respectfully acknowledge the Yaluk-ut Weelam Clan of the Boon Wurrung and their continuing relationship to the land upon which this project is sited.

Heritage Context

Photos from the 1920’s show a Queen Anne pitched-roof house. Around a decade later the property was subdivided with two ground floor apartments and a second storey added to accommodate a third. Access to the first floor apartment by a new external stair and a Spanish Mission style façade transformed the presentation to the street. This alteration retained remnants of the original Queen Anne style at ground level which, together with alterations that enclosed the front portico the 1970’s, resulted in a façade that lacked clarity and undermined the intended glamor of the Spanish Mission alterations.

Specific Site Context

If you stand at the top of the external stairs and look across the bay, you are on a direct alignment with The Rip, a narrow opening that separates Point Nepean from Point Lonsdale. This gap is an aperture in the protective embrace of the Mornington and the Bellarine Peninsula that protect the bay-side suburbs from the battering winds of the Bass Strait.

Between Beaconsfield Parade and the distant shore-line the lights of the shipping lane flicker in the early evening light. All day and night a slow moving line of ships enter through The Rip and cross the bay. Their enormous hulking forms slipping in and out of views framed by architectural openings, by narrow lanes and rows of trees. We are reminded of Rick Amor’s “Study For The Ship 2003” where a hulking bow fills empty arches of an abandoned building and of his wind-sculptured tea-trees that cling, claw-like to dunes now still, in front of glassy water.

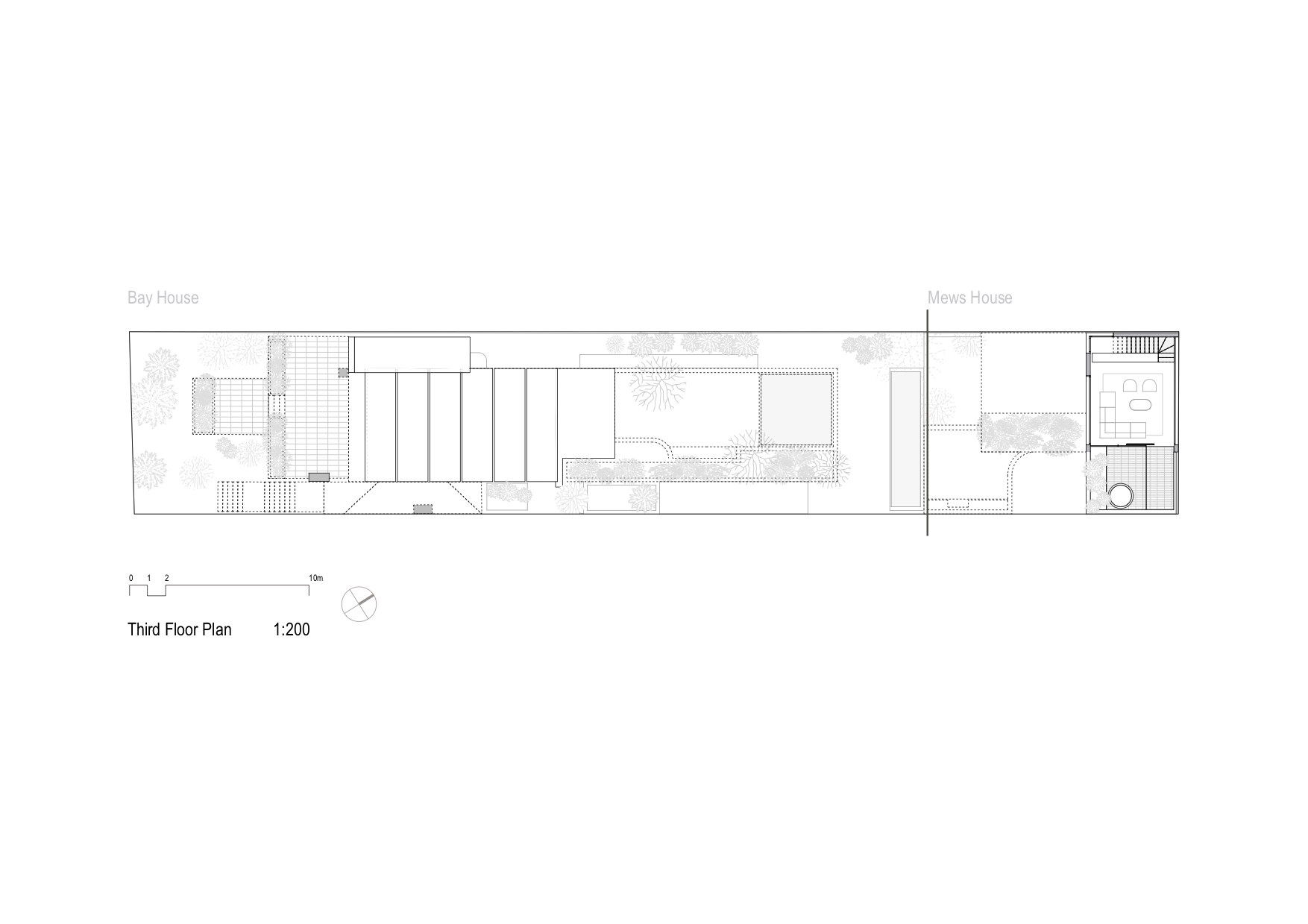
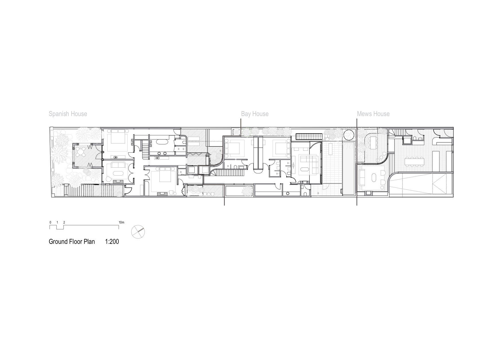
Multi-residential Design

This design is for three homes:

The three distinct homes interlock in section to provide outlook, privacy and connection to landscape in an intricate balance that maintains and responds the heritage fabric and ensures that the spaces formed meet passive design principles in terms of light and ventilation. The alterations expressive forms are un-apologetic in their architectural contribution to the multi-layered history on this site.

Lisieux

Lisieux is a beachfront property, located in Middle Park on the low lying strip of land between Albert Park Lake and Port Phillip Bay, once called Hobson Bay, and before that for a long time, Nairm. We respectfully acknowledge the Yaluk-ut Weelam Clan of the Boon Wurrung and their continuing relationship to the land upon which this project is sited.

Heritage Context

Photos from the 1920’s show a Queen Anne pitched-roof house. Around a decade later the property was subdivided with two ground floor apartments and a second storey added to accommodate a third. Access to the first floor apartment by a new external stair and a Spanish Mission style façade transformed the presentation to the street. This alteration retained remnants of the original Queen Anne style at ground level which, together with alterations that enclosed the front portico the 1970’s, resulted in a façade that lacked clarity and undermined the intended glamor of the Spanish Mission alterations.

Specific Site Context

If you stand at the top of the external stairs and look across the bay, you are on a direct alignment with The Rip, a narrow opening that separates Point Nepean from Point Lonsdale. This gap is an aperture in the protective embrace of the Mornington and the Bellarine Peninsula that protect the bay-side suburbs from the battering winds of the Bass Strait.

Between Beaconsfield Parade and the distant shore-line the lights of the shipping lane flicker in the early evening light. All day and night a slow moving line of ships enter through The Rip and cross the bay. Their enormous hulking forms slipping in and out of views framed by architectural openings, by narrow lanes and rows of trees. We are reminded of Rick Amor’s “Study For The Ship 2003” where a hulking bow fills empty arches of an abandoned building and of his wind-sculptured tea-trees that cling, claw-like to dunes now still, in front of glassy water.

Multi-residential Design

This design is for three homes:

The three distinct homes interlock in section to provide outlook, privacy and connection to landscape in an intricate balance that maintains and responds the heritage fabric and ensures that the spaces formed meet passive design principles in terms of light and ventilation. The alterations expressive forms are un-apologetic in their architectural contribution to the multi-layered history on this site.